Opis produktu

Opis

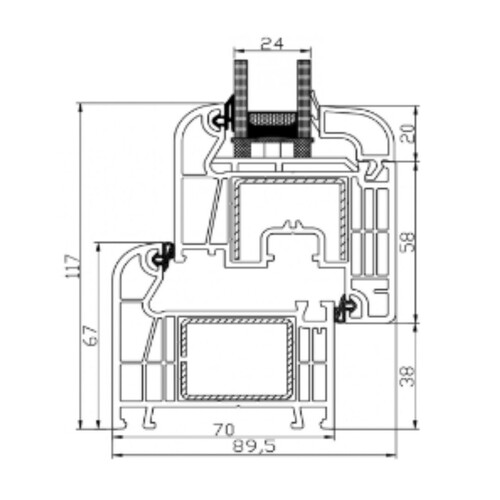
Okno Sonarol Clasictherm to sześciokomorowy system profili okiennych o zabudowie 70mm, oferowany jest z klasycznym, prostym skrzydłem niezlicowanym. Wysokiej jakości mieszanka PVC stosowana do produkcji profili tłoczonych w firmie SONAROL gwarantuje wieloletnią trwałość koloru, odporność na warunki atmosferyczne i łatwość w konserwacji.

  • bezołowiowe - ekologiczne profile Clasictherm wykonane na stabilizatorach cynkowo-wapniowych nie zawierają ołowiu,
  • eleganckie - symetryczne i łagodne zaokrąglone profile, stylowa listwa - przyszybowa z czarną lub szarą uszczelką oraz możliwość zamówienia pakietu szybowego z ciepłą ramką w różnych kolorach sprawiają, iż okna nabierają niepowtarzalnego wyglądu,
  • trwałe i bezpieczne - zamknięte wzmocnienie w ramie, możliwość zastosowania klamki Secustik oraz zaczepów antywyważeniowych gwarantują wieloletnie bezawaryjne użytkowanie oraz zabezpieczają przed włamaniem,
  • ciepłe - sześciokomorowe profile ram i skrzydeł o szerokości 70 mm oraz możliwość zastosowania pakietów trzyszybowych z ciepłą ramką szerokości 40 mm, o współczynniku 0,6 W/m2K, zapewniają doskonałą izolacyjność termiczną,
  • ciche - sześciokomorowy system profili oraz możliwość zastosowanie pakietu trzyszybowego gwarantują spokój w domowym zaciszu.

Parametry techniczne:

  • szerokość (gx): 2365mm,
  • wysokość (gy): 1435mm,
  • sposób otwierania: R+R+RU (rozwierne + rozwierne + rozwierno-uchylne),
  • ilość skrzydeł: trzyskrzydłowe,
  • profil: 6-cio komorowy,
  • głębokość zabudowy: rama 70mm,
  • pakiet szybowy: 24mm, Ug=1,1 W/m2K (dwuszybowy),
  • uszczelka w kolorze czarnym,
  • okucie MACO z serii Multi Matic z mikrowentylacją zatrzask przeciwwietrzny.

Sonarol Okno PVC 2365 x 1435mm, R+R+RU

Kod produktu: 012022

Okno Sonarol Clasictherm to sześciokomorowy system profili okiennych o zabudowie 70mm, oferowany jest z klasycznym, prostym skrzydłem niezlicowanym. Wysokiej jakości mieszanka PVC stosowana do produkcji profili tłoczonych w firmie SONAROL gwarantuje wieloletnią trwałość koloru, odporność na warunki atmosferyczne i łatwość w konserwacji.

  • bezołowiowe - ekologiczne profile Clasictherm wykonane na stabilizatorach cynkowo-wapniowych nie zawierają ołowiu,
  • eleganckie - symetryczne i łagodne zaokrąglone profile, stylowa listwa - przyszybowa z czarną lub szarą uszczelką oraz możliwość zamówienia pakietu szybowego z ciepłą ramką w różnych kolorach sprawiają, iż okna nabierają niepowtarzalnego wyglądu,
  • trwałe i bezpieczne - zamknięte wzmocnienie w ramie, możliwość zastosowania klamki Secustik oraz zaczepów antywyważeniowych gwarantują wieloletnie bezawaryjne użytkowanie oraz zabezpieczają przed włamaniem,
  • ciepłe - sześciokomorowe profile ram i skrzydeł o szerokości 70 mm oraz możliwość zastosowania pakietów trzyszybowych z ciepłą ramką szerokości 40 mm, o współczynniku 0,6 W/m2K, zapewniają doskonałą izolacyjność termiczną,
  • ciche - sześciokomorowy system profili oraz możliwość zastosowanie pakietu trzyszybowego gwarantują spokój w domowym zaciszu.

Parametry techniczne:

  • szerokość (gx): 2365mm,
  • wysokość (gy): 1435mm,
  • sposób otwierania: R+R+RU (rozwierne + rozwierne + rozwierno-uchylne),
  • ilość skrzydeł: trzyskrzydłowe,
  • profil: 6-cio komorowy,
  • głębokość zabudowy: rama 70mm,
  • pakiet szybowy: 24mm, Ug=1,1 W/m2K (dwuszybowy),
  • uszczelka w kolorze czarnym,
  • okucie MACO z serii Multi Matic z mikrowentylacją zatrzask przeciwwietrzny.
Cena: 1 749,90 zł / szt. 1749.90 PLN
Cena netto: 1 422,68 zł netto
Ilość:
Dostępność: produkt na zamówienie
  • Przesyłka kurierska
    • paczka do 30 kg - od 14.90zł
    • płatność przelew bankowy
    • paczka do 30 kg – od 19.90zł
    • płatność pobranie
  • Przesyłka kurierska - transport farb
    • paczka do 10 kg – 19,90zł
    • płatność przelew bankowy
    • paczka do 10 kg – 24,90zł
    • płatność pobranie
  • Transport własny
    • gabaryt S - 14.90zł
    • gabaryt M - 19.90zł
    • gabaryt L - 29.90zł
    • gabaryt XL - 49.90zł

Po więcej szczegółów zapraszamy do zakładki Sposoby i koszty dostawy.

Dane techniczne

| szerokość okna 2365mm
| wysokość okna 1435mm
| rodzaj okucia trzykwaterowe R+R+RU
| pakiet szybowy 2-szybowy

Opinie o produkcie (0)

Taniej niż
w markecie!

Skarbonka
Jesteśmy dostępni online i stacjonarnie. Zależy nam na Twoim komforcie dlatego jesteśmy do dyspozycji osobiście w naszym sklepie w Borowej, telefonicznie a także mailowo. Pracujemy od pon-pt:
online 9:00 - 20:00
stacjonarnie 9:00 - 16:30
Chcesz zwrócić lub wymienić towar? To proste! Użyj gotowego formularza zwrotu dostępnego na naszej stronie. Odeślemy pieniądze jak tylko otrzymamy zwrócony towar. Szybko i sprawnie - bez zbędnych pytań. Na Twoją decyzję czekamy aż 14 dni!
  • Dane adresowe:
  • Borowa 42a
  • 39-305 Borowa

Copyright © FHU Bogusław Kwiatkowski Wszelkie prawa zastrzeżone | Wykonanie strony: Cognize

do góry
Pokaż pełną wersję strony
Sklep internetowy Shoper.pl